Котел КВм 2.5 с ТШПМ в Кульсары

КВм 2.5 МВт котел с ТШПМ
Котел КВм 2.5 МВт с ТШПМ
Котел КВм 2.5 МВт с ТШПМ чертеж
Чертеж котла КВм 2.5 МВт с ТШПМ
Промышленный котел КВм 2.5 МВт - изготовление
Изготовление промышленного котла КВм 2.5 МВт
Котлы промышленные КВм 2.5 МВт - изготовление
Изготовление промышленных котлов КВм 2.5 МВт
Водогрейный котел КВм 2.5 МВт - изготовление
Изготовление водогрейного котла КВм 2.5 МВт
Котел КВм 2.5 МВт - изготовление
Изготовление котла КВм 2.5 МВт
Механическая топка ТШПМ 2.5
Топка ТШПМ 2.5
Котлы КВм 2.5 МВт - производство
Производство котлов КВм 2.5 МВт
КВм 2.5 МВт котел с ТШПМ
Котел КВм 2.5 МВт с ТШПМ чертеж
Промышленный котел КВм 2.5 МВт - изготовление
Котлы промышленные КВм 2.5 МВт - изготовление
Водогрейный котел КВм 2.5 МВт - изготовление
Котел КВм 2.5 МВт - изготовление
Механическая топка ТШПМ 2.5
Котлы КВм 2.5 МВт - производство
Цена
13 858 440 ₸
От 13 858 440 ₸ с доставкой до г.
  • Модель с механической топкой с шурующей планкой ТШПМ
  • Работа на каменном и буром угле повышенной влажности
  • Полностью автоматизированная работа – подача и равномерное распределение топлива, механическое золоудаление, контроль температуры и давления, контроль перегрузки планки
  • Надежная работа котла обеспечивается изготовлением трубной системы из трубы сталь 10, 20 повышенной прочности
  • Удобные люки для очистки поверхностей нагрева

Технические характеристики котла КВм 2.5 с ТШПМ

МаркаКотел КВм 2.5 с ТШПМ
ВидВодогрейный
Тип отопительного котлаТвердотопливный
БрендHEATEXPERT
ТипКотел КВм
Вид топкиМеханическая, ТШПМ
Марка топкиТШПМ-2.5
Максимальная тепловая мощность2.5 МВт
Максимальная тепловая мощность2200 кВт
Максимальная тепловая мощность2.15 Гкал
Диапазон регулирования мощности50-100 %
ТопливоТвердое, Уголь
Низшая теплота сгорания проектного топлива5230 кКал/кг
КПД котла на УГЛЕ, не менее80 %
Расход УГЛЯ среднечасовой за отопительный сезон280 кг/ч
Расход УГЛЯ при максимальной нагрузке котла490 кг/ч
Расход условного топлива366 кг/ч
Минимальная температура воды на входе в котел55 °С
Максимальная температура воды на выходе из котла115 °С
Давление воды, не более0.3-0.6 (3-6) МПа (кгс/см²)
Номинальный расход теплоносителя86 м³/ч
Расход теплоносителя через котел min-max64-107 м³/ч
Гидравлическое сопротивление при номинальном расходене более 0.07 (0.7) МПа (кгс/см²)
Аэродинамическое сопротивление400 (40) Па (мм. вод. ст.)
Разряжение в топочной камере20-40 (2-4) Па (мм. вод. ст.)
Объем уходящих газов10750 м³/ч
Температура уходящих газов220 °С
ТягаУравновешенная
Водяной объем котла1650 л
Объем топочной камеры6.8 м³
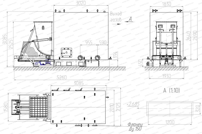
Размер топочной камеры, длина*ширина*высота1800х1510х2515 мм
Активная площадь решетки горения2.2 м²
Присоединительные размеры по водяному тракту150 Ду
Присоединительные размеры газохода уходящих газов, ширина*высота / сечение1200х320 / 0.38 мм/м²
Габаритные размеры блока, длина*ширина*высота3085х2010х2690 мм
Габаритные размеры установки, длина*ширина*высота5260х2125х3085
Масса6350 кг
Конструкция котлаВодотрубная
Количество контуровОдноконтурный
РазмещениеНапольный
Тип камеры сгоранияОткрытый
УправлениеЭлектронное
Принцип работы твердотопливного котлаКлассический
ЭнергонезависимыйНет
Тип питанияТрехфазное
Встроенный циркуляционный насосНет
Встроенный расширительный бакНет
ЭнергоэффективностьВысокая
Отапливаемая площадьот 20900 до 27400 м²
Отапливаемый объемот 62600 до 82000 м³

Механический котел КВм 2.5 с ТШПМ в Кульсары

Водогрейный механический котел КВм с ТШПМ мощностью 2.5 МВт работает на каменном и буром угле, используется в механизированных котельных для отопления и горячего водоснабжения. Котел устанавливается на топку с шурующей планкой и неподвижной колосниковой решеткой ТШПМ. Агрегат обслуживается транспортерами топливоподачи и золошлакоудаления. Температура нагрева воды 115 °С, рабочее давление 0,3-0,6 МПа.

Котел КВм 2.5 МВт с ТШПМ устройство

Промышленный стальной котел КВм-2.5 с ТШПМ состоит из котельного блока и топки ТШПМ. Топочное пространство выполнено газоплотным. Чтобы обеспечить газоплотность, между охлаждаемыми трубами котлоагрегата вваривается стальная полоса. Это исключает присос холодного воздуха в топку и зону горения. Деление топки на зоны сушки, горения, охлаждения и сброса позволяет работать на влажном топливе без снижения температуры дымовых газов.

Котельный блок - гладкотрубный, горизонтальной компоновки. Снаружи на водонагревательный котел 2.5 с ТШПМ для отопления устанавливается каркас с теплоизоляцией из плит ПТЭ с обшивкой стальными листами. Функцию шуровки для поддержания реакции горения выполняет водоохлаждаемая шурующая планка, с определенной скоростью движущаяся вдоль неподвижной колосниковой решетки.

Конвективная поверхность сконструирована в виде регистров, вставленных друг в друга в шахматном порядке. Такая поверхность имеет обширную нагревательную площадь и максимальный коэффициент теплопередачи. Дымовые газы охлаждаются на выходе до 200-180 °С. Изоляция отопительного трубного котла КВм-2,5 ТШПМ обеспечивает температуру наружных стенок менее 30 °С.

Котельная должна быть оборудована механизированными средствами подачи топлива и удаления продуктов сгорания.

Гидравлическая схема котла

Скорость движения воды по трубам турбулизирует поток и не допускает отложение солей и образование накипи на стенках трубопроводов. Застой воды в системе и перегрев предупреждают многочисленные перегородки в коллекторах водотрубного котла. За счет гладкотрубной системы и небольшого водяного объема котел взрывобезопасен.

Принцип работы механического котла 2.5 МВт с ТШПМ

Производственный твердотопливный котел КВм 2 5 ТШПМ полностью автоматизирован. Котельная оборудуется транспортерами топливоподачи и золошлакоудаления. По транспортеру топливо поступает в бункер топки ТШПМ. Автоматический питатель бункера подает уголь через определенный промежуток времени на неподвижную решетку топки. Одновременно в действие приводится шурующая планка, передвигающая топливо в конец топки, где продукты сгорания сбрасываются в канал золошлакоудаления и транспортируются в отвал.

Мощность топки регулируется изменением интервала между циклами хода шурующей планки.

Комплект поставки

Цена на механические котлы 2.5 МВт с топкой ТШПМ включает базовую комплектацию. В состав базовой комплектации входит: котельный блок, топка с шурующей планкой, вентилятор поддува, затворы, предохранительные клапаны, вентили, манометры, термометры, трехходовые краны.

Дополнительная комплектация

  • дымосос – создает разряжение в котле и исключает попадание дыма в помещение;
  • золоуловитель – применяется для улавливания золы из дымовых газов;
  • циркуляционный насос - обеспечивает циркуляцию воды в котлоагрегате;
  • подпиточный насос – позволяет пополнять объем теплоносителя в контуре;
  • транспортер УСШ – служит для удаления золы и шлака из под котлов за пределы котельной;
  • бункер топлива - предназначен для создания запаса топлива и устанавливается перед транспортерами подачи;
  • дробилка - предназначена для измельчения поступающего на переработку каменного и бурого угля.

Купить котел КВм 2.5 с ТШПМ

Для того, что бы купить механический котел КВм 2.5 с ТШПМ в Кульсары вы можете сделать заявку по телефону +7-7172-69-59-73, либо оформить заявку онлайн. Менеджеры дадут консультацию по подбору вспомогательного оборудования для выбранных вами моделей и рассчитают стоимость доставки. Транспортирование котлоагрегата и вспомогательного оборудования до объекта осуществляется автомобильным транспортом.

Марки и виды котлов КВм 2.5 с ТШПМ производства котельный завод Энергия К

Российские котлы КВм 2.5 с ТШПМ изготавливаются по ГОСТ 30735-2001 и имеют сертификат соответствия ТС ТР 010/2011, ТС ТР 016/2011, ТС ТР 0632/2013.

Марка КВм 2.5 с ТШПМ расшифровывается как котел водогрейный теплопроизводительностью 2,5 МВт, 2500 КВт с механической топкой с шурующей планкой ТШПМ. Также может примениться дополнительная аббревиатура например:

  • котел КВм 2,5 ШП;
  • котел КВм 2,5-95 ШП с температурой нагрева до 95 градусов;
  • котел КВм 2,5-115 ШП с температурой нагрева до 115 градусов;
  • котел КВм 2,5-115 К/Б работающий на каменном и буром угле с механической подачей.

Комплект поставки котла КВм 2.5 с ТШПМ

Топка ТШПМ 2.5
Топка ТШПМ-2,5
1 штука
Вентилятор
Вентилятор 4 с дв. 5,5/1500
1 штука
Затвор Ду 150
Затвор Ду 150
2 штуки
Клапан предохранительный Ду 50
Клапан Ду 50
1 штука
Клапан обратный
Клапан обратный
1 штука
Манометр МП 160
Манометр МП 160
2 штуки
Кран трехходовой ДУ 15
Кран Ду 15
2 штуки
Термометр ТТЖО
Термометр ТТЖО
2 штуки
Оправа термометра ОПТ
Оправа ОПТ
2 штуки
Вентиль Ду 15
Вентиль Ду 15
2 штуки
Вентиль Ду 20
Вентиль Ду 20
7 штук
Вентиль Ду 25
Вентиль Ду 25
6 штук
Вентиль Ду 32
Вентиль Ду 32
2 штуки

Вспомогательное оборудование для работы котла КВм 2.5 с ТШПМ

Автоматика механической топки ТШПМ
Цена 1 462 800 тг.
Дымосос ДН 8
Цена 1 380 756 тг.
Золоуловитель ЗУ 2.15
Цена 604 200 тг.
Дымосос ДН 9
Цена 1 471 704 тг.
Подъемник скиповый 100
Цена 4 960 800 тг.
Скребковый транспортер ТС 2-30
Цена 7 632 000 тг.
ВДП 15 дробилка
Цена 7 218 600 тг.
Бункер для топлива
Цена 4 897 200 тг.
Насос К консольный
К 100-80-160а
Цена 595 932 тг.
Насос К консольный
К 65-50-160а
Цена 388 596 тг.
Насос TD
Насос TD80-30G2 (11 кВт)
Цена по запросу
Насос TD
Насос TD100-33G2 (15 кВт)
Цена 2 057 460 тг.
Насос CHL
Насос CHL8-30 (1.1 кВт)
Цена 618 828 тг.

Аналоги котла КВм 2.5 с ТШПМ

Котел 2.5 МВт с топкой ЗП РПК
Котел КВм 2.5 с ЗП РПК
Вид топкиМеханическая, ЗП РПК
Максимальная тепловая мощность, МВт2.5
ТопливоТвердое, Уголь
Отапливаемая площадь, м²от 16700 до 21900
Цена 16 536 000 тг.
Котел КВм-2.5 с ТЛПХ
Котел КВм 2.5 с ТЛПХ
Вид топкиМеханическая, ТЛПХ
Максимальная тепловая мощность, МВт2.5
ТопливоТвердое, Уголь
Отапливаемая площадь, м²от 20900 до 27400
Цена 42 624 720 тг.
Котел КВм 2.5 МВт с топкой РПК
Котел КВм 2.5 МВт с РПК
Вид топкиМеханическая, РПК
Максимальная тепловая мощность, МВт2.5
ТопливоТвердое, Уголь
Отапливаемая площадь, м²от 20900 до 27400
Цена 13 102 236 тг.
Котел КВр-2.5 К
Котел КВр 2.5 МВт
Вид топкиРучная, Колосники
Максимальная тепловая мощность, МВт2.5
ТопливоТвердое, Уголь
Отапливаемая площадь, м²от 20900 до 27400
Цена 9 075 720 тг.
Котел КВм 2.2 МВт с ТШПМ
Котел КВм 2.2 с ТШПМ
Вид топкиМеханическая, ТШПМ
Максимальная тепловая мощность, МВт2.2
ТопливоТвердое, Уголь
Отапливаемая площадь, м²от 18400 до 24100
Цена 13 858 440 тг.
КВм 3.0 МВт котел с ТШПМ
Котел КВм 3.0 с ТШПМ
Вид топкиМеханическая, ТШПМ
Максимальная тепловая мощность, МВт3
ТопливоТвердое, Уголь
Отапливаемая площадь, м²от 25000 до 32900
Цена 14 456 280 тг.

Сертификат и качество котла КВм 2.5 с ТШПМ

Сертификат на водогрейные котлы на твердом и жидком топливе
Сертификат на водогрейные котлы на твердом топливе

Собственное производство

Котельный завод производит
  • Паровые котлы от 300 кг до 2.5 тонны пара в час
  • Промышленные водогрейные котлы от 150 КВт до 4 МВт на всех видах топлива
  • Механические топки ТШПМ, шурующая планка и ТЛПХ, ленточное полотно прямого хода
  • Циклоны для очистки воздуха и дымовых газов для производств и промышленных отраслей
  • Транспортеры и системы топливоподачи и шлакоудаления
Подробнее о производстве
Собственное производство
Смотреть видео
с производства